اولین پایگاه تخصصی طراحی اردوگاه و اسکان

اولین پایگاه تخصصی طراحی اردوگاه و اسکان

اولین پایگاه تخصصی طراحی اردوگاه و اسکان

اولین پایگاه تخصصی طراحی اردوگاه و اسکان

۱ مطلب با کلمه‌ی کلیدی «تیپ 2» ثبت شده است

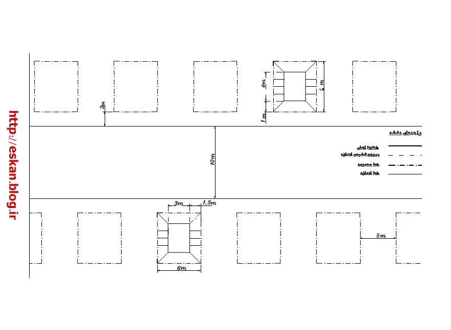
در بسیاری از مناطقی که فضای لازم جهت برقراری اردوگاهها، به اشکال دیگر وجود نداردبخصوص در شهرها، در خیابانها و مسیرهای اصلی جوابگو می‏باشد.

از جمله مزایای طرح خطی آنست که در هیچ جای اردوگاه مرکز عمده‏ای که  تراکم‏زا باشد وجود ندارد.

در صورتیکه به شرایط اقلیمی (باد و نور خورشید و…) توجه شود، به لحاظ برخورداری صحیح و مناسب از نور کافی بهداشت اردوگاه مطلوب‏تر از سایر طرحها است. 

فاصله چادر تا چادر 8متر و فاصله میخ چادر تا لب جاده 2 متر اگر جدولی یا جوی نیست.

علی نهری ملایری